
室內對造型、尺度的把控,同樣關乎居住感受??团P床頭柜采用高低式布局,柜體舍棄一體順延至頂的形式,渲染輕盈的呼吸感,不經意間釋放出寧靜、慵懶的包容氣息。
這座珠海橫琴度假居所,遠離浮躁喧囂,挖掘自然與空間美學,以設計承載并服務于生活,讓業(yè)主夫婦在這個繁雜的都市生活中,度假居所設計擁有屬于自己的避風港,在全方位的感官觸覺體驗下,褪下疲憊,擁抱最舒適安逸的狀態(tài)。同時在平和中傳遞并實現著“大隱隱于市,歸家即度假”的探尋,也令外在的呈現與內在的價值達到統(tǒng)一。
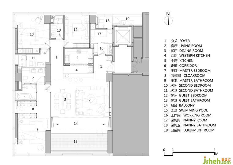
平面圖
更多度假居所設計請關注聚設匯裝修平臺: