人人超人人爽碰免费_亚洲国产区中文_AV免费观看无码_欧美国语中文在线看

歡迎光臨聚設匯,裝修找設計就上聚設匯!
?? 咨詢電話:15602987227
聚設匯
首頁 > 家裝 > 精裝房改造 | 疊排家居空間進化史

精裝房改造 | 疊排家居空間進化史

06

CHILDREN ROOM

兒童房

-

以藍做分色打造小男孩的童趣空間鄰兩面墻放置床體,保證兒童活動空間的寬敞幾何造型與收納空間結(jié)合,豐富家居生活的趣味疊排精裝房改造

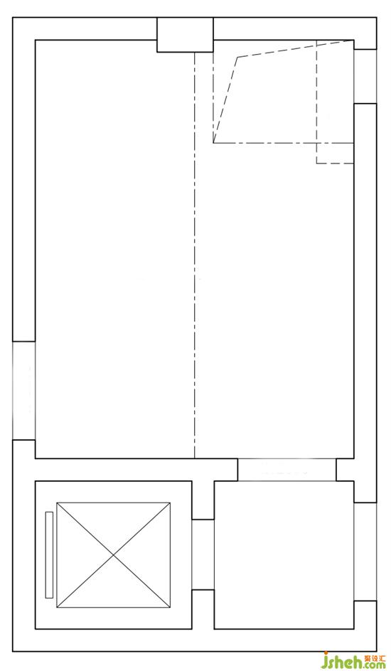
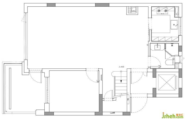
07

HOUSE TYPE&PLANE DESIGN

原始結(jié)構(gòu)&平面設計圖

-

△負一樓結(jié)構(gòu)圖

△一樓結(jié)構(gòu)圖

△二樓結(jié)構(gòu)圖

菲拉設計

設計收費:面議 元/平             

擅長類型: 家居、豪宅、別墅

在線咨詢

掃描二維碼關(guān)注我們的微信

深圳市聚設匯文化傳媒有限公司
主編熱線:15602987227
總部:深圳市羅湖區(qū)梨園路128號寶能汽車大樓416單元
佛山、東莞、成都、重慶、福州、廈門、南昌、武漢、
杭州、蘇州、溫州、鄭州、長春、沈陽、貴陽、柳州、
哈爾濱、九江等城市設立辦事處
? 2017-2021 Jsheh.com 版權(quán)所有 粵ICP備17079093號
展開
回到頂部