項目名稱東方明珠廣場-劉總雅居設計
樓盤名稱東方明珠廣場
項目所在城市福建省廈門
項目完成日期2021.04
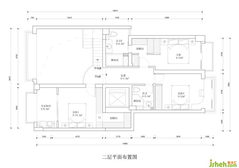
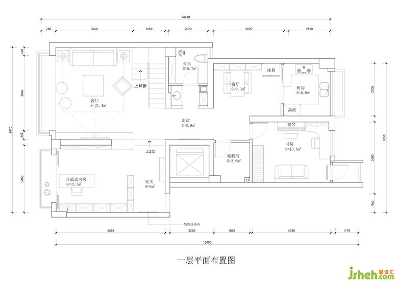
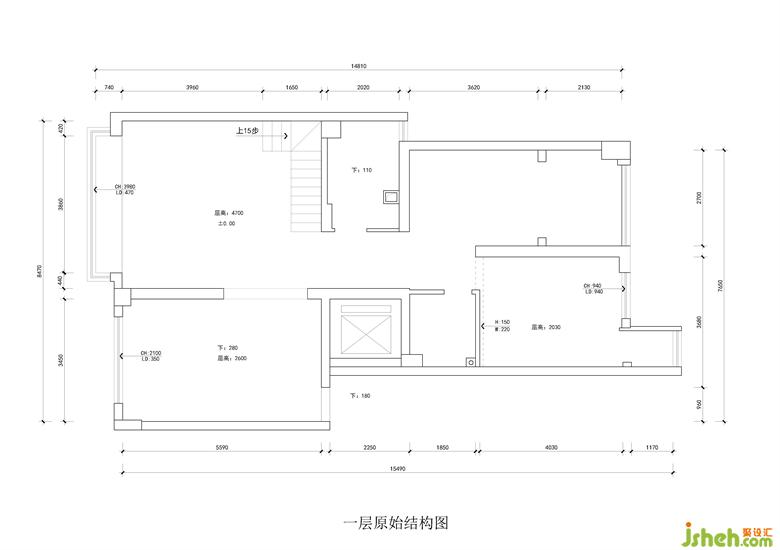
項目面積220平米
項目總造價100萬
設計公司:房建美裝飾
主持設計:郭艷
本案是兩個小孩與一對年輕夫妻居住,業(yè)主希望有足夠多的收納,空間分明的情況下能夠最大化視覺的寬敞舒適,雅居設計整體格調干凈不失優(yōu)雅,溫暖且靈動,設計中運用了一些透視、鏤空的手法,配合鏡面和亮面的材質,深淺材質搭配,最大化營造空間感的同時,根據窗戶朝南采光充沛,將光影引入室內與適合的材質融合,使得空間更加耐人尋味!











更多雅居設計請關注聚設匯裝修平臺: