人人超人人爽碰免费_亚洲国产区中文_AV免费观看无码_欧美国语中文在线看

歡迎光臨聚設匯,裝修找設計就上聚設匯!
?? 咨詢電話:15602987227
聚設匯
首頁 > 家裝 > 四合宅

四合宅

唐山別墅裝飾建造過程:

平面圖紙:

概念年圖解

總平面圖

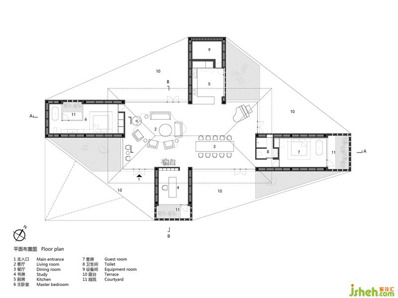
平面布置圖

南立面圖

西立面圖

剖面圖

構(gòu)造詳圖

工作模型

更多唐山別墅裝飾請關(guān)注聚設匯裝修平臺:

建筑營設計工作室 創(chuàng)始人

設計收費:600 元/平             

擅長類型: 教育,文化,店鋪,別墅

在線咨詢

我的作品更多>>

掃描二維碼關(guān)注我們的微信

深圳市聚設匯文化傳媒有限公司
主編熱線:15602987227
總部:深圳市羅湖區(qū)梨園路128號寶能汽車大樓416單元
佛山、東莞、成都、重慶、福州、廈門、南昌、武漢、
杭州、蘇州、溫州、鄭州、長春、沈陽、貴陽、柳州、
哈爾濱、九江等城市設立辦事處
? 2017-2021 Jsheh.com 版權(quán)所有 粵ICP備17079093號
展開
回到頂部