人人超人人爽碰免费_亚洲国产区中文_AV免费观看无码_欧美国语中文在线看

歡迎光臨聚設匯,裝修找設計就上聚設匯!
?? 咨詢電話:15602987227
聚設匯
首頁 > 家裝 > 夕愛別墅裝飾設計

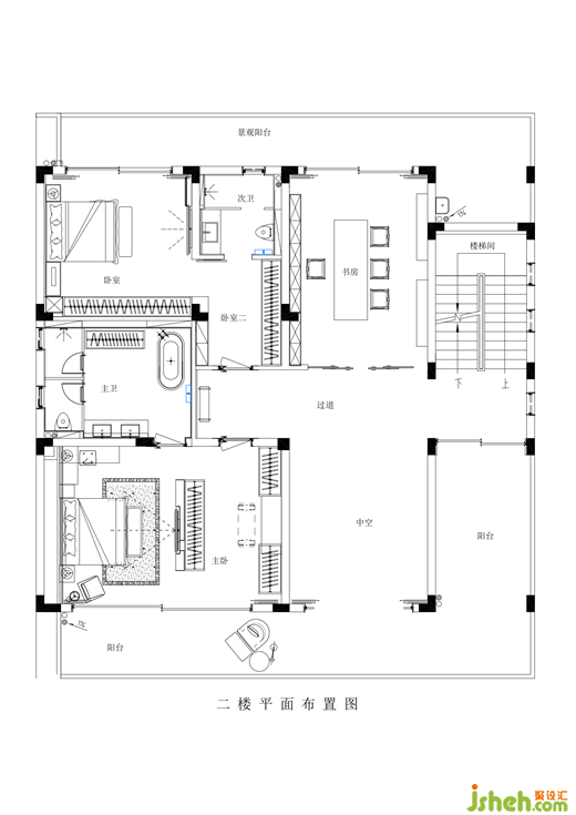
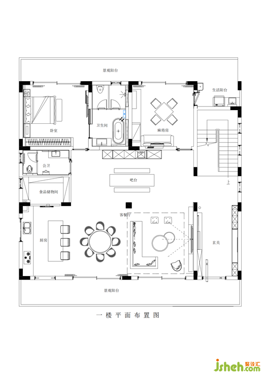
夕愛別墅裝飾設計

家,因人而動,因愛而生,滿載情感的空間,將滲透至往后的生活點滴。萬籟俱寂,夜空如洗,愿山野有光,照亮歸途。

更多別墅裝飾設計請關注聚設匯裝修平臺:

SUHO HOME

設計收費:500 元/平             

擅長類型: 別墅豪宅,家居設計

在線咨詢

掃描二維碼關注我們的微信

深圳市聚設匯文化傳媒有限公司
主編熱線:15602987227
總部:深圳市羅湖區(qū)梨園路128號寶能汽車大樓416單元
佛山、東莞、成都、重慶、福州、廈門、南昌、武漢、
杭州、蘇州、溫州、鄭州、長春、沈陽、貴陽、柳州、
哈爾濱、九江等城市設立辦事處
? 2017-2021 Jsheh.com 版權所有 粵ICP備17079093號
展開
回到頂部