


△ 一步一景

△ 主臥室
人生百年,所歷之時,日居其半,夜居其半。大白話也就是說,人生一世,白天工作吃飯,耗去一半時光,而另一半時光,別墅裝飾則是在夜間睡覺中度過。白天我們所處,或職場或廳堂,或廚房或健身房,而夜間所處,唯臥室睡房。臥室的床,是我們相共半生的地方,所以尤其需要愜意舒適、溫暖溫馨。一抬眼,卻是純凈怡人的藍天、白云,或者海水、浪花……身心輕盈,安然恬淡。
而墻上的一盞長條橘色暗淡的燈,充滿古韻柔情,在夜半夢回或清晨,半眠半醒之間睜開眼,迷迷糊糊不知的茫然中,一抬頭,便有安全、踏實與安心。

△ 書房
中式為主打風格的精舍之房,除窗明幾凈之外,尚有圖書翰墨、文房四寶種種。一桌一椅一壺茶,別墅裝飾是士大夫文人墨客“偷得浮生半日閑”、“無事此靜坐”的最清靜的向往所在。中式主體下,端坐的桌椅,簡單寬大舒適,非止容得下一臀,就像一個大度宰相,包容得下周身,得以愜意自由地騰挪靠倚,整個身心得以自由放松。
而所需文房四寶、宣紙狼毫,藏之柜格,終究不如就在眼前,隨取隨得,用之如左右手一樣便捷。正所謂一事有一事之需,一物備一物之用。
書房的墻壁,最宜瀟灑,最忌堆砌繁復。就像畫家作畫不懂留白,讓人一眼看透假裝的偽態(tài)。天下萬物,以少為貴。幾案對面,一幅字畫——湖光山色,藍天白云,寺觀浮屠,蒹葭鷗鳥……正應了房舍“取景在借”的技巧?;秀敝兴埔娨簧让嫔綄5拇埃瑒e開生面。即因地制宜、不拘成見之法。

△ 樓梯過道
△ 客房
△ 負一樓平面
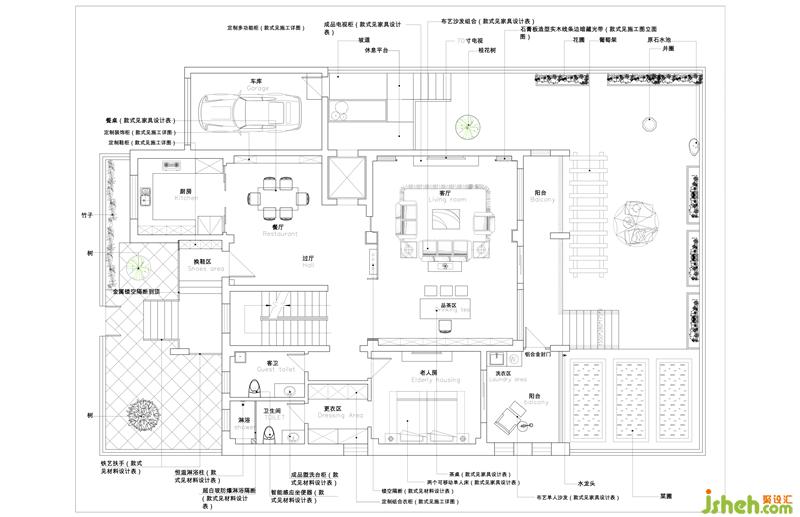
△ 一樓平面
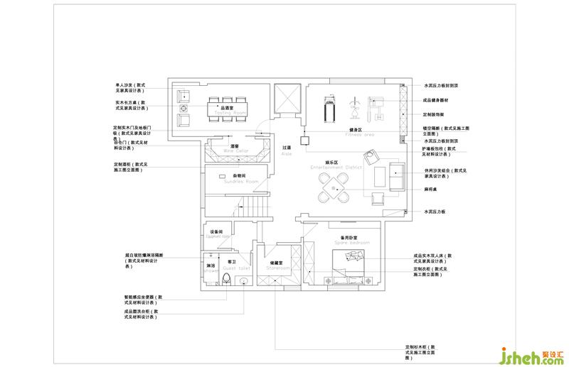
△二樓平面
△三樓平面
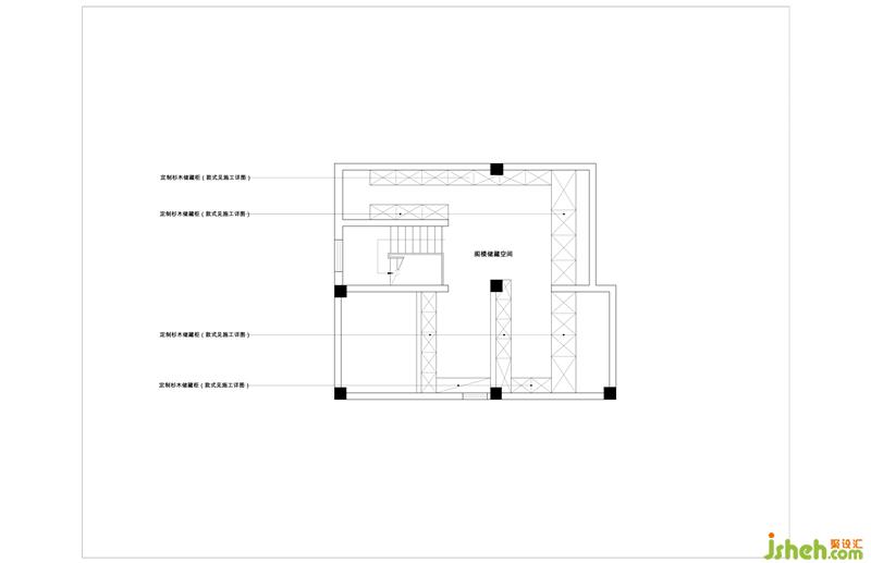
△閣樓平面
更多別墅裝飾請關注聚設匯裝修平臺: