人人超人人爽碰免费_亚洲国产区中文_AV免费观看无码_欧美国语中文在线看

歡迎光臨聚設匯,裝修找設計就上聚設匯!
?? 咨詢電話:15602987227
聚設匯
首頁 > 商業(yè) > 香韻典故辦公室設計

香韻典故辦公室設計

結語

我們在日常生活里的真正收獲是不可觸摸、難以形容的,就像早晨和黃昏的霞光。我們抓住的是些許星塵,是彩虹的碎片。幽靜中延續(xù)美的意境,工作室設計在這個空間里,順應本性,放空身心,不知不覺便遠離紛繁俗世之擾,蕩滌心靈的塵埃,洗刷往日的一切,盡享釋然的情懷。傳承信念與自然,愿往后每個神采奕奕的日子,都有香韻典故的參與。

分析圖

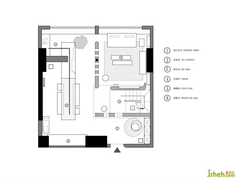
一樓原始結構圖

 

一樓平面布置圖

 

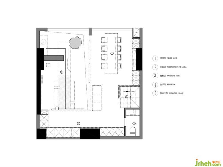
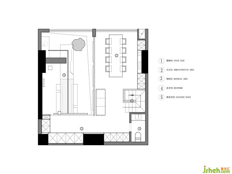
二樓原始結構圖

 

二樓平面布置圖

更多工作室設計請關注聚設匯裝修平臺

香韻典故設計工作室

設計收費:300 元/平             

擅長類型: 家居

在線咨詢

掃描二維碼關注我們的微信

深圳市聚設匯文化傳媒有限公司
主編熱線:15602987227
總部:深圳市羅湖區(qū)梨園路128號寶能汽車大樓416單元
佛山、東莞、成都、重慶、福州、廈門、南昌、武漢、
杭州、蘇州、溫州、鄭州、長春、沈陽、貴陽、柳州、
哈爾濱、九江等城市設立辦事處
? 2017-2021 Jsheh.com 版權所有 粵ICP備17079093號
展開
回到頂部