人人超人人爽碰免费_亚洲国产区中文_AV免费观看无码_欧美国语中文在线看

歡迎光臨聚設匯,裝修找設計就上聚設匯!
?? 咨詢電話:15602987227
聚設匯
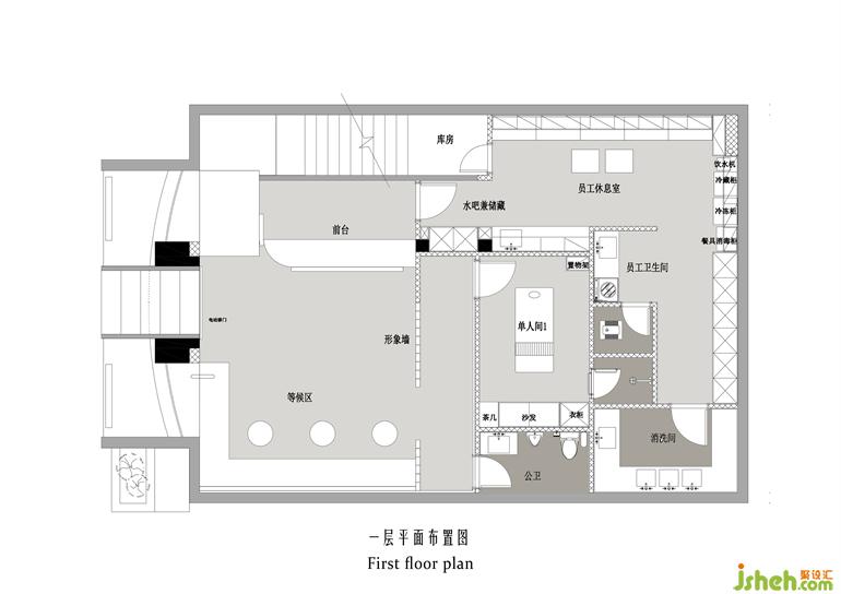
首頁 > 商業(yè) > 東方山茶梧桐郡店茶室設計

東方山茶梧桐郡店茶室設計

更多東方山茶茶室設計請關注聚設匯裝修平臺:

近晴設計

設計收費:300 元/平             

擅長類型: 商業(yè)、餐飲、家居

在線咨詢

掃描二維碼關注我們的微信

深圳市聚設匯文化傳媒有限公司
主編熱線:15602987227
總部:深圳市羅湖區(qū)梨園路128號寶能汽車大樓416單元
佛山、東莞、成都、重慶、福州、廈門、南昌、武漢、
杭州、蘇州、溫州、鄭州、長春、沈陽、貴陽、柳州、
哈爾濱、九江等城市設立辦事處
? 2017-2021 Jsheh.com 版權所有 粵ICP備17079093號
展開
回到頂部