人人超人人爽碰免费_亚洲国产区中文_AV免费观看无码_欧美国语中文在线看

歡迎光臨聚設匯,裝修找設計就上聚設匯!
?? 咨詢電話:15602987227
聚設匯
首頁 > 家裝 > 小幸運

小幸運

灰色和粉色配搭在一起,有一種優(yōu)雅的感覺,而又不失少女心,粉色系家居將甜美和青春感融入生活和夢里。

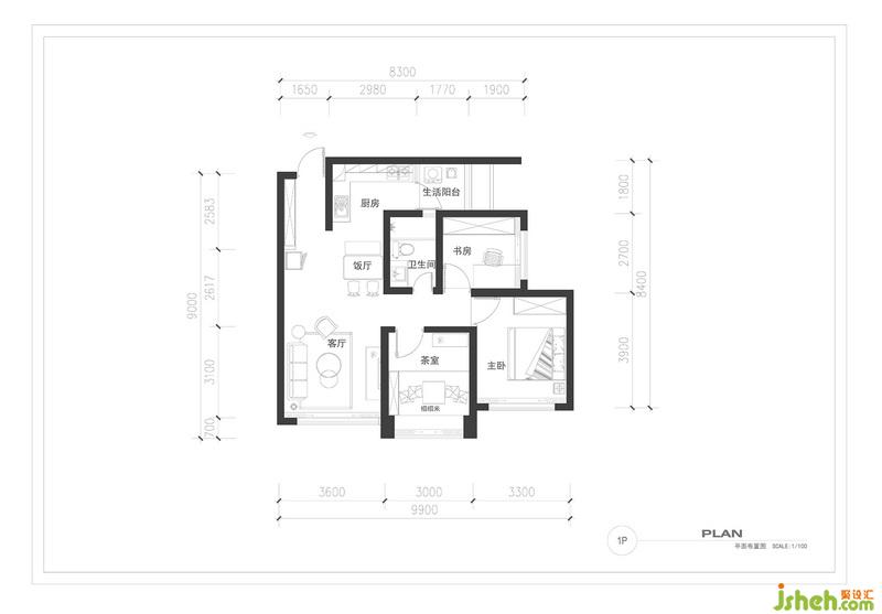
室內設計師把次臥打造成茶室和臥室兩用的空間,做成榻榻米床。因為采光很好,業(yè)主的父母偶爾過來小住時,業(yè)主便可以陪二老喝茶聊天曬太陽,又可以留他們過夜休息。

業(yè)主基本不在家里面辦公,把原本書桌換成邊桌,盡可能的使空間使用率提高。

灰度空間設計設計總監(jiān)

設計收費:面議 元/平             

擅長類型: 家居住宅

在線咨詢

我的作品更多>>

掃描二維碼關注我們的微信

深圳市聚設匯文化傳媒有限公司
主編熱線:15602987227
總部:深圳市羅湖區(qū)梨園路128號寶能汽車大樓416單元
佛山、東莞、成都、重慶、福州、廈門、南昌、武漢、
杭州、蘇州、溫州、鄭州、長春、沈陽、貴陽、柳州、
哈爾濱、九江等城市設立辦事處
? 2017-2021 Jsheh.com 版權所有 粵ICP備17079093號
展開
回到頂部