人人超人人爽碰免费_亚洲国产区中文_AV免费观看无码_欧美国语中文在线看

歡迎光臨聚設匯,裝修找設計就上聚設匯!
?? 咨詢電話:15602987227
聚設匯
首頁 > 家裝 > 向限建筑|老宅新生:向上,一對90后夫妻的烏托邦

向限建筑|老宅新生:向上,一對90后夫妻的烏托邦


▼主臥/Master Bedroom

▼廚房/Kitchen

在日式風格中,回歸自然就是最大的特色,在色彩,功能,造型的設計上推崇貼近自然,強調自然主義,讓人有置身自然的奇妙感受。家裝設計為客戶打造一個閑適寫意,悠然自得的家。

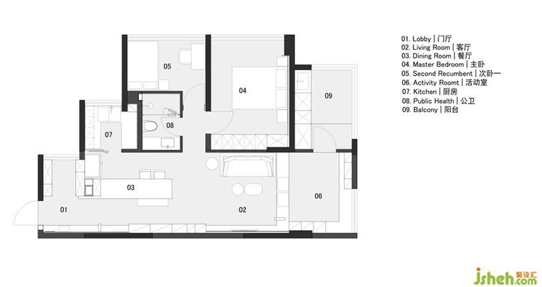
▼上:原始結構及墻體拆除圖

▼下:平面布局圖

更多家裝設計請關注聚設匯裝修平臺:

深圳向限建筑創(chuàng)始人

設計收費:面議 元/平             

擅長類型: 豪宅,辦公室,樣板房

在線咨詢

掃描二維碼關注我們的微信

深圳市聚設匯文化傳媒有限公司
主編熱線:15602987227
總部:深圳市羅湖區(qū)梨園路128號寶能汽車大樓416單元
佛山、東莞、成都、重慶、福州、廈門、南昌、武漢、
杭州、蘇州、溫州、鄭州、長春、沈陽、貴陽、柳州、
哈爾濱、九江等城市設立辦事處
? 2017-2021 Jsheh.com 版權所有 粵ICP備17079093號
展開
回到頂部